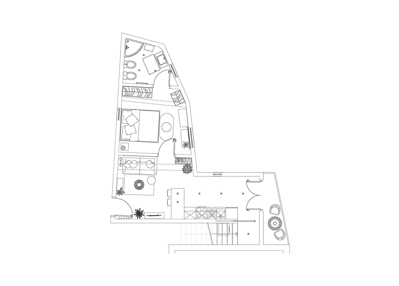
ONE-BEDROOM FLAT IN FRANCE Renovation and decoration in boho style of a one-bedroom flat by the sea DESIGN CONSULTATION AND MOODBOARD SITE INSPECTION AND DESIGN PLAN RENOVATION PROJECT LIGHTING PLAN MATERIAL SOURCING AND FURNITURE SELECTION FINAL FURNISHING