HOLIDAY HOUSE IN ITALY

Renovation and decoration of a traditional-style house in Italy

DESIGN CONSULTATION AND MOODBOARD

FURNITURE DESIGN

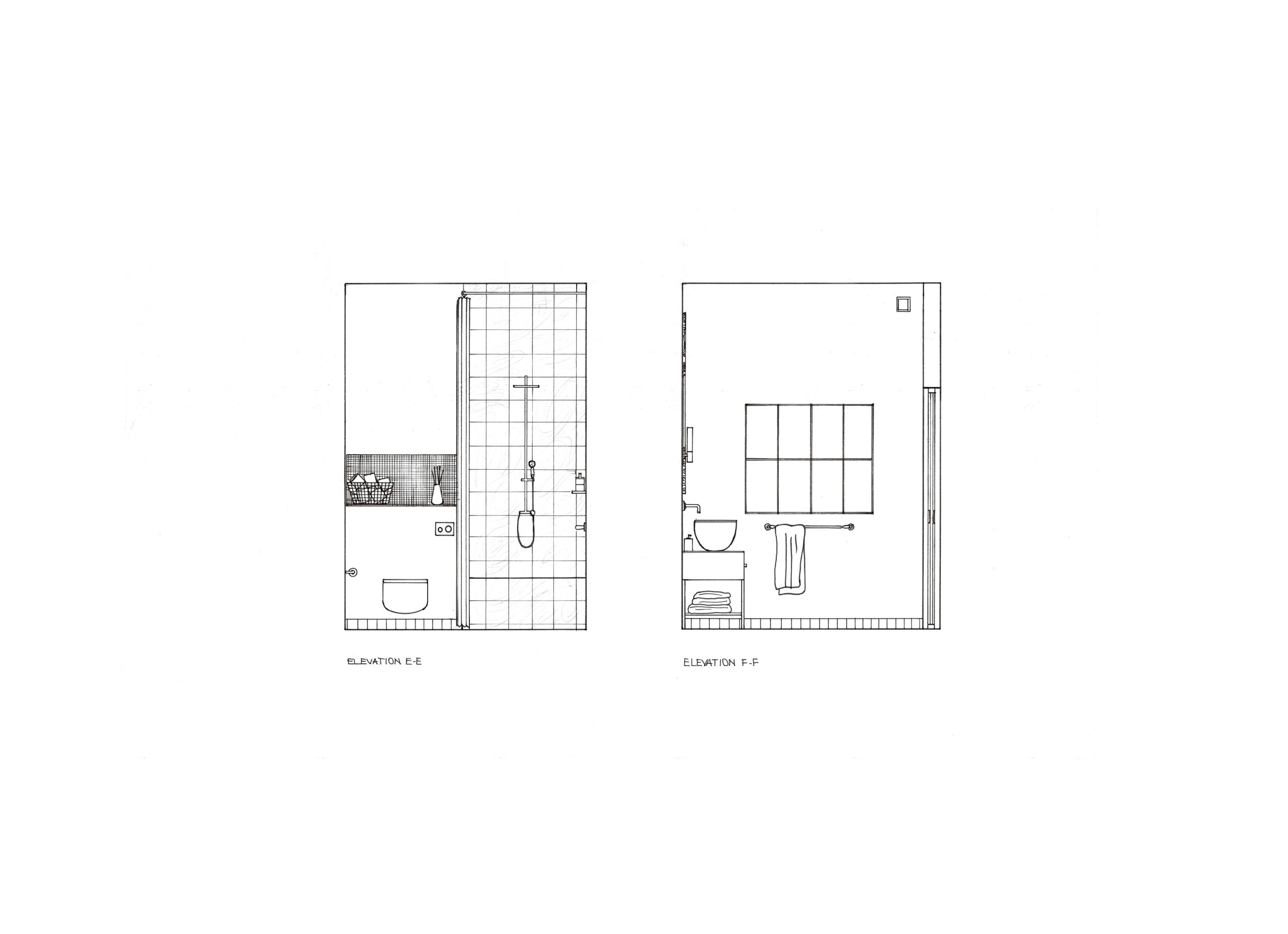
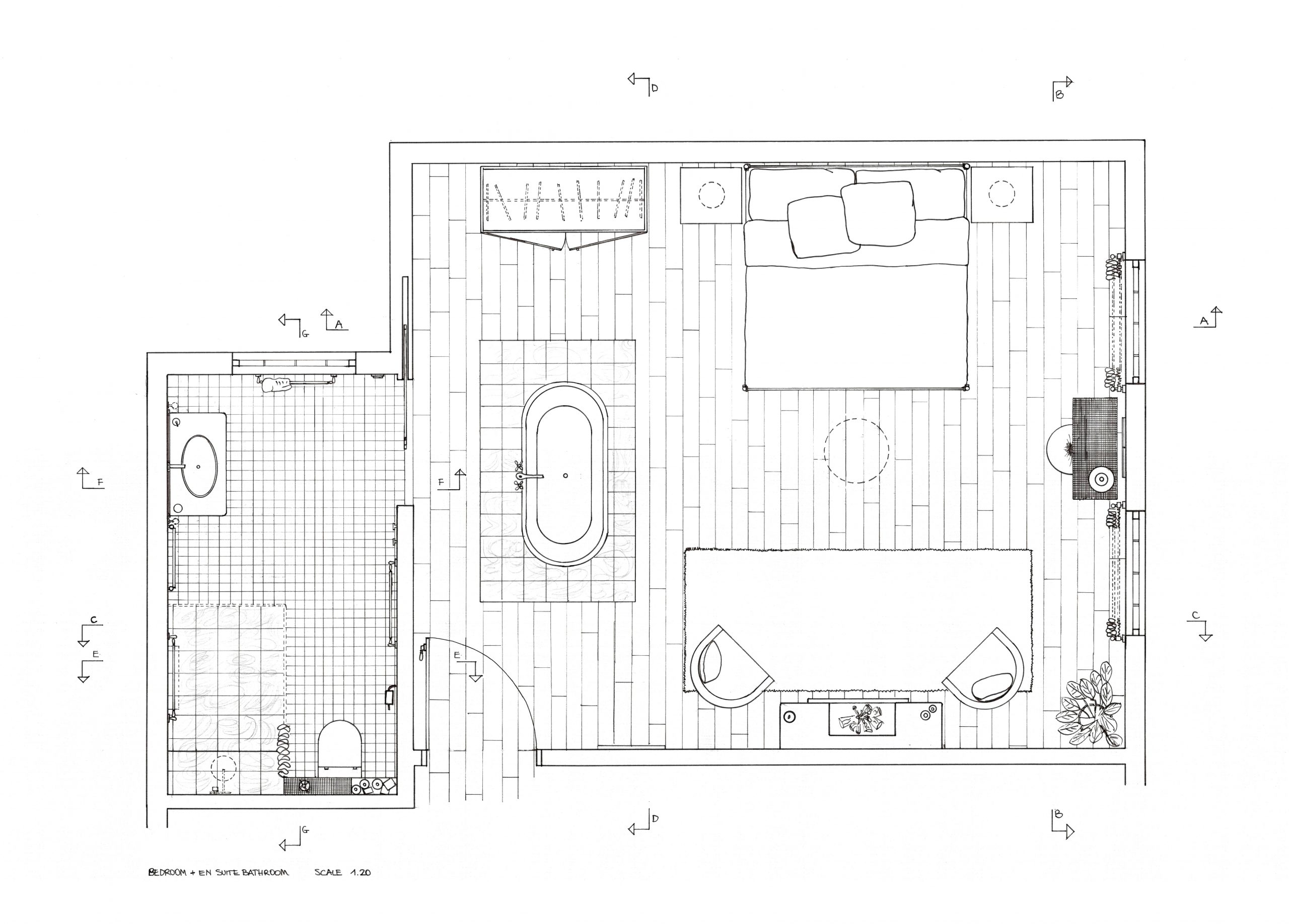
HAND-MADE SKETCHES OF THE PROJECT WITH FURNITURE SELECTION

FINAL FURNISHING