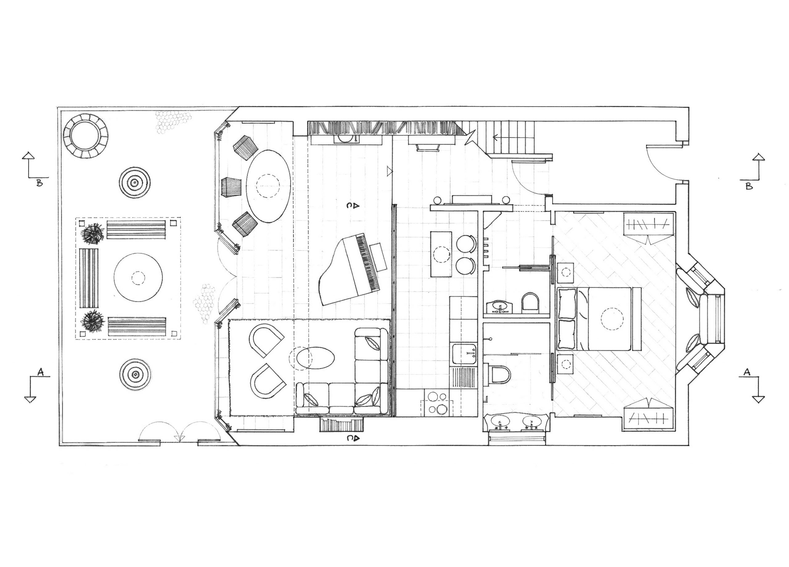
ONE-BEDROOM FLAT IN LONDON

Renovation and decoration of a Victorian house in London

DESIGN CONSULTATION AND MOODBOARD

HAND-DRAWN SKETCHES OF THE PROJECT WITH FURNITURE IDEAS